top of page


ENERIZ RUSTIC ALPHA
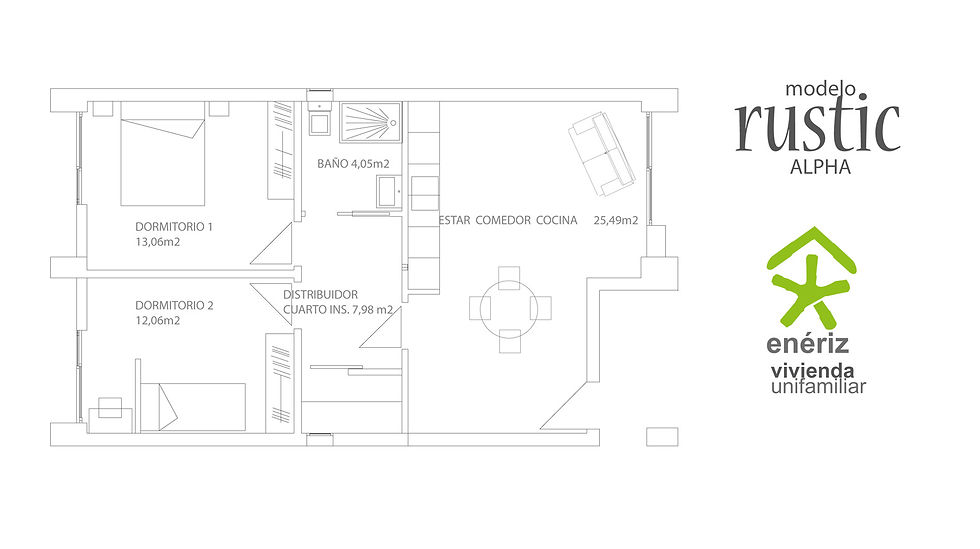
Vivienda industrializada ARTECSANA. Climatización doble con suelo radiante y aire acondicionado frío- calor. Domótica. Persianas motorizadas. Dos dormitorios, baño y salón-comedor-cocina.

PLANTA RUSTIC ALPHA

SITUACION

ENERIZ RUSTIC ALPHA
Vivienda industrializada ARTECSANA. Climatización doble con suelo radiante y aire acondicionado frío- calor. Domótica. Persianas motorizadas. Dos dormitorios, baño y salón-comedor-cocina.
1/7
bottom of page
